Wohnen / Pflege – Greifswald Wohnen mit Service
Umbau Wohnen mit Service, Ostseeviertel Parkseite, Greifswald 2005-2006,
Deutscher Bauherrenpreis 2007
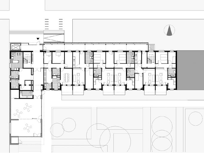
Dieser Bauabschnitt des Quartiers C4 wird geprägt durch seine zwei Anbauten: auf der Nordseite der Laubengang und die vertikale Erschließung inkl. Aufzug und auf der Südseite ein eingeschosssiger Clubraum, der vom ganzen Quartier benutzt werden kann. Mit seiner roten Farbe nimmt er das Thema der farblich akzentuierten der Haus- und Hofeingänge auf.
Für das „Wohnen mit Service“ wurden überwiegend kleinere Wohnungen, als im Bestand vorhanden, benötigt. Aus diesem Grund sieht die Konzeption einen Wechsel der Erschließung vor: Die größere Wohnungen werden im EG – 2.OG über einen Laubengang und die kleinere, südorientierten Einheiten im 3 – 5.OG über einen ‚Mittelgang‘ erschlossen.
Bauherr: Wohnungsbau- und Verwaltungsgesellschaft mbH Greifswald
Planung: dieRaumhandlung – Lüling Rau Architekten
Projektteam: Ulrike Rau, Anja Müller, Martina Dieckert
Bauleitung: KDB
Statik: Ingenieurbüro Friedrich
Haustechnik: Enkosa
Landschaftsarchitektur: hochC / ST raum a
Fotografie: Jan Bitter
BGF: 3.864 qm
Baukosten: 2,3 Mio Euro brutto
LPH: 1-5, anteilig 6, 7, 8






