Bildung / Forschung – Bioquant
Realisierungswettbewerb Laborgebäude Bioquant, Heidelberg 2002,
Ankauf
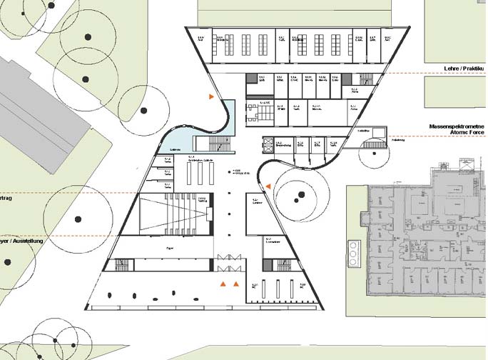
Das neue Institutsgebäude bezieht seine Adresse unmittelbar an der neuen Campusanlage und untermauert das geplante stadträumliche Gesamtkonzept. Die räumliche Zusammenführung der Disziplinen „Biowissenschaften“ und „Wissenschaftliches Rechnen“ findet ihren Ausdruck in der baukörperlichen Gestaltung des neuen Institutsgebäudes: Zwei Häuser verschmelzen miteinander und generieren ein neues gemeinsames Haus.
Das Innere des neuen Gebäudes unterliegt einer strengen Ordnungsstruktur, die sich aus den unterschiedlichen programmatischen Anforderungen entwickelt. – Im Zentrum des Gebäudes, in unmittelbarer Nähe der Haupterschließung, werden die Publikumsbereiche der Institute sowie gemeinsam genutzte Einrichtungen (Besprechung – Bibliothek) angeordnet.
Auf der nördlichen Grundstückshälfte wird ein „Garten der Wissenschaften“ angelegt.
Heckenanpflanzungen bilden hier geschützte Nischen für intime Gespräche und kreative Pausen.
Planung: Ulrike Rau, Andreas Schwarz
Haustechnik: Zibell, Willner & Partner
Statik: Pichler Ingenieure





