Kultur / Soziales Dorfgemeinschaftshaus Spiesen
Realisierungswettbewerb Umbau Dorfgemeinschaftshaus Spiesen-Elversberg, 2010
Sesam öffne Dich! SE-Saal öffne Dich!
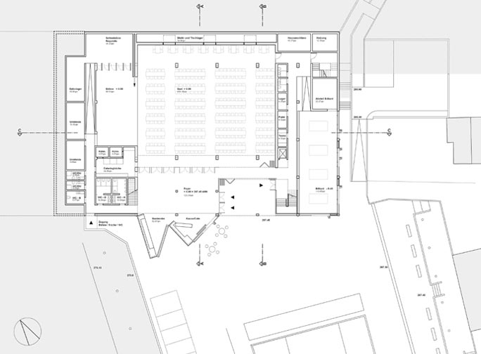
Das äußere Erscheinungsbild verrät zunächst nicht den hybriden Charakter des Hauses: Die einheitliche Farbgestaltung fasst Bestehendes und Hinzugefügtes zusammen. Ein graphisches Muster überzieht gleichmäßig die Fassaden des REWE-Marktes und des Dorfgemeinschafthauses. Aus der Distanz betrachtet entpuppt sich das Muster als überdimensionierte Schriftzeichen; Farbe und Schrifttype erinnern an das REWE – Firmenlogo, der Inhalt verweist auf die neue Nutzung.
Erst durch die räumliche Geste des Öffnens zeigt sich die neue Nutzung: Über große torähnliche Auffaltungen öffnet sich die Fassade zum Festplatz und gewährt Einblick in das geheimnisvolle Innere. Die Auffaltungen erweisen sich als räumliche Erweiterungen; im Erdgeschoss bieten sie Platz für einen kleinen Cafebereich zwischen Foyer und Platz, im Obergeschoß bilden sie räumlich gefasste Aussenterrassen. Bei abendlicher Nutzung zeigt sich das neue Gemeinschaftshaus besonders deutlich: Die Fassade wirkt nun als eine diaphane, leuchtende Wand. So ermöglicht das neue Haus mehrere Lesarten. Chamäleonartig wechselt es sein äußeres Erscheinungsbild.
Planung: Ulrike Rau, Andreas Schwarz
Statik: Saradshow Fischedick, Berlin
Haustechnik: Zibell, Willner & Partner
BGF: 2341 m²





