Gewerbe / Industrie – Hoppe
Umbau Produktion Kunststoffspritzerei Hoppe, Mahlow 2008
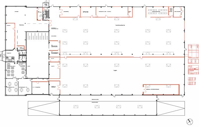
Der Umbau des bestehenden 3-geschossigen Bürogebäudes mit angebauter Lagerhalle für die Kunststoffspritzerei Hoppe sieht umfangreiche Nutzungsänderungen für die Produktion im Erdgeschoss vor. Neben dem Einbau von separaten Fertigungseinheiten mit natürlicher Belichtung- und Belüftung und Nebenräume für die Mitarbeiter bietet der Umbau ein Leit- und Orientierungssytem im Produktionsbereich. Die zukünftige Neugestaltung des Eingangsbereiches und die Umstrukturierung der Bürotrakte im 1. OG folgen der entwickelten Farbkonzeption.
Bauherr: Hoppe Kunststoffspritzerei und Formenbau KG
Planung: dieRaumhandlung – Lüling Rau Architekten
Projektteam: Claudia Lüling, Jörg Finkbeiner, Beniamino Calchera
LPH: 1-9



